- 
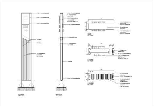
            深化设计核对图纸,深化制作图纸  
- 
            材料定制依据施工图专项选择与项目匹配的材料及辅助材料  
- 
            工艺加工材料切割、折弯、焊接、卡扣、定型、铸模等加工  
- 
            生产设备品质服务成就信赖,上千家企业客户的共同之选  
- 
            出货抽检切实做好抽检工作,为客户提供良好的品质保证  
- 
            安装现场细节见证品质,麦肯注重每个步骤  

 
         
         
         
         
         
        
